Search

Leave a Message

Thank you for your message. We will be in touch with you shortly.

Explore Our Properties

Property Description

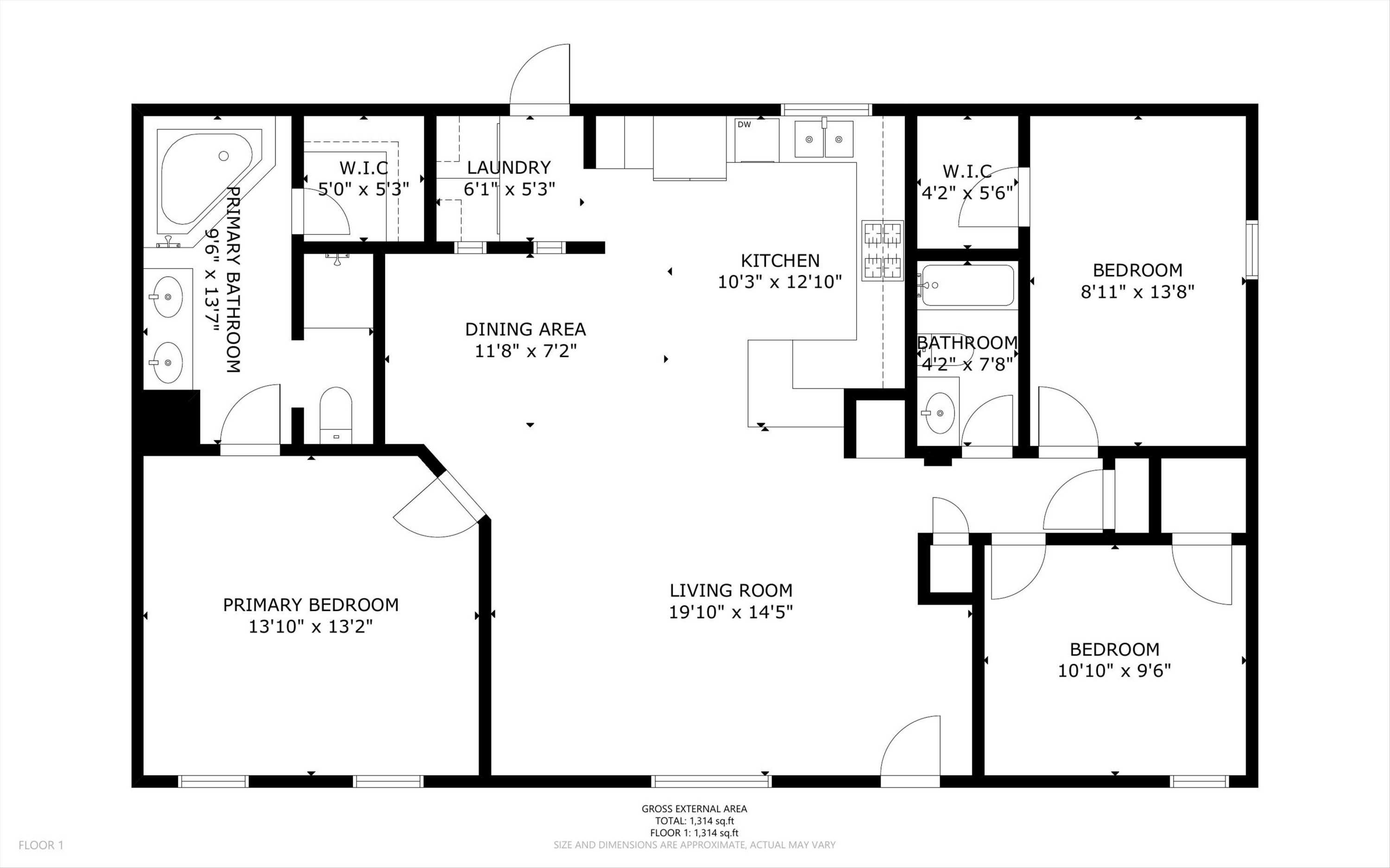
Welcome to 3 Toledo Ave in Moriarty, NM, a charming 3 bedroom, 2 bath home on a full acre in the peaceful East Mountain region. This property offers the perfect blend of rural living and convenience, with space for gardening, animals, or future improvements. Inside, the home features a comfortable layout with a bright living area, functional kitchen, and a private primary suite set apart from the additional bedrooms. Two full baths add convenience for family or guests, while refrigerated air keeps the home cool during warm New Mexico summers. The acre lot provides plenty of room to expand or simply enjoy wide open skies.

Overview

Property Status
For Sale
Lot Size
1 Acres
MLS ID
1090003
Property Type
Manufactured-Mobile
Year Built
2008

Features & Amenities

Total Area
1,248 Sq.Ft.
Architecture Styles
Mobile Home
Stories
1
Water Source
Private, Well
Utilites
Cable Available, Electricity Connected, Natural Gas Connected, Sewer Connected, Water Connected
Roof
Metal
Heat Type
Central, Forced Air, Floor Furnace, Natural Gas
Air Conditioning
Refrigerated, Window Unit(s)
Laundry Room
Dryer Hookup, Electric Dryer Hookup
Appliances
Built-In Gas Oven, Built-In Gas Range, Dishwasher, Refrigerator, Range Hood
Other Interior Features
Bookcases, Ceiling Fan(s), Dual Sinks, Garden Tub/Roman Tub, High Speed Internet, Home Office, Living/Dining Room, Main Level Primary, Separate Shower, Cable TV, Walk-In Closet(s)
Sewer
Septic Tank
Security Features
Smoke Detector(s)
Green Feature
None
Other Exterior Features
Fully Fenced, RV Parking/RV Hookup
Sales Price
$210,000
Real Estate Tax
$1,020/yr

Downloads

3 TOLEDO Avenue

Schedule a Tour

We would love to help you see this beautiful home! As a full-service brokerage, we can help you tour. Please submit an offer, and answer questions about the buying process.

Enter a valid email

Thank you

for your interest in 3 TOLEDO Avenue, Moriarty, NM 87035

back to page
3 TOLEDO Avenue
Navigate

Mortgage Calculator

Estimate your monthly mortgage payment, including the principal and interest, property taxes, and HOA. Adjust the values to generate a more accurate rate.
$0,000 Your Payment 20 15 65
$0,000 Your Payment

I'm Interested In

3 TOLEDO Avenue

or Contact

Follow Us On Instagram