Search

Leave a Message

Thank you for your message. We will be in touch with you shortly.

Explore Our Properties

Property Description

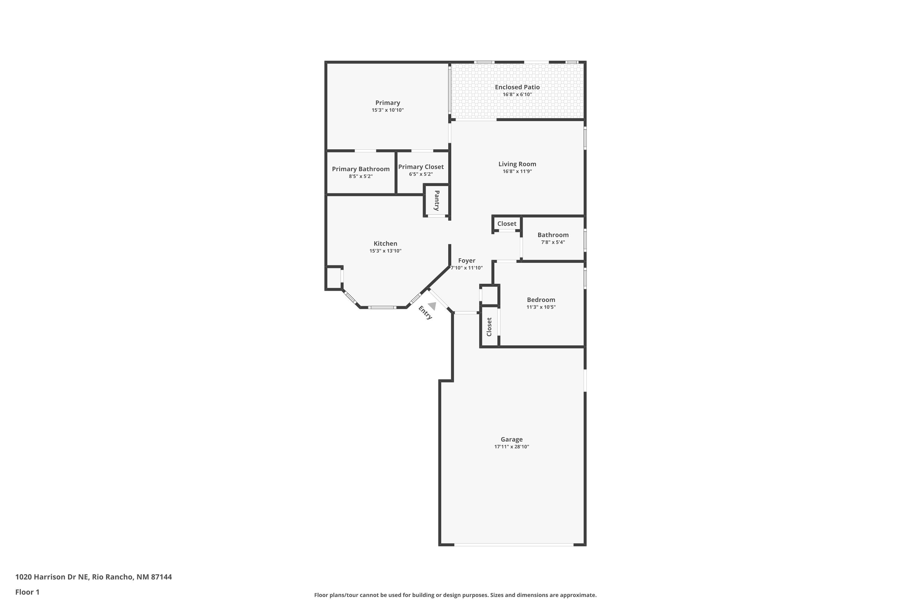
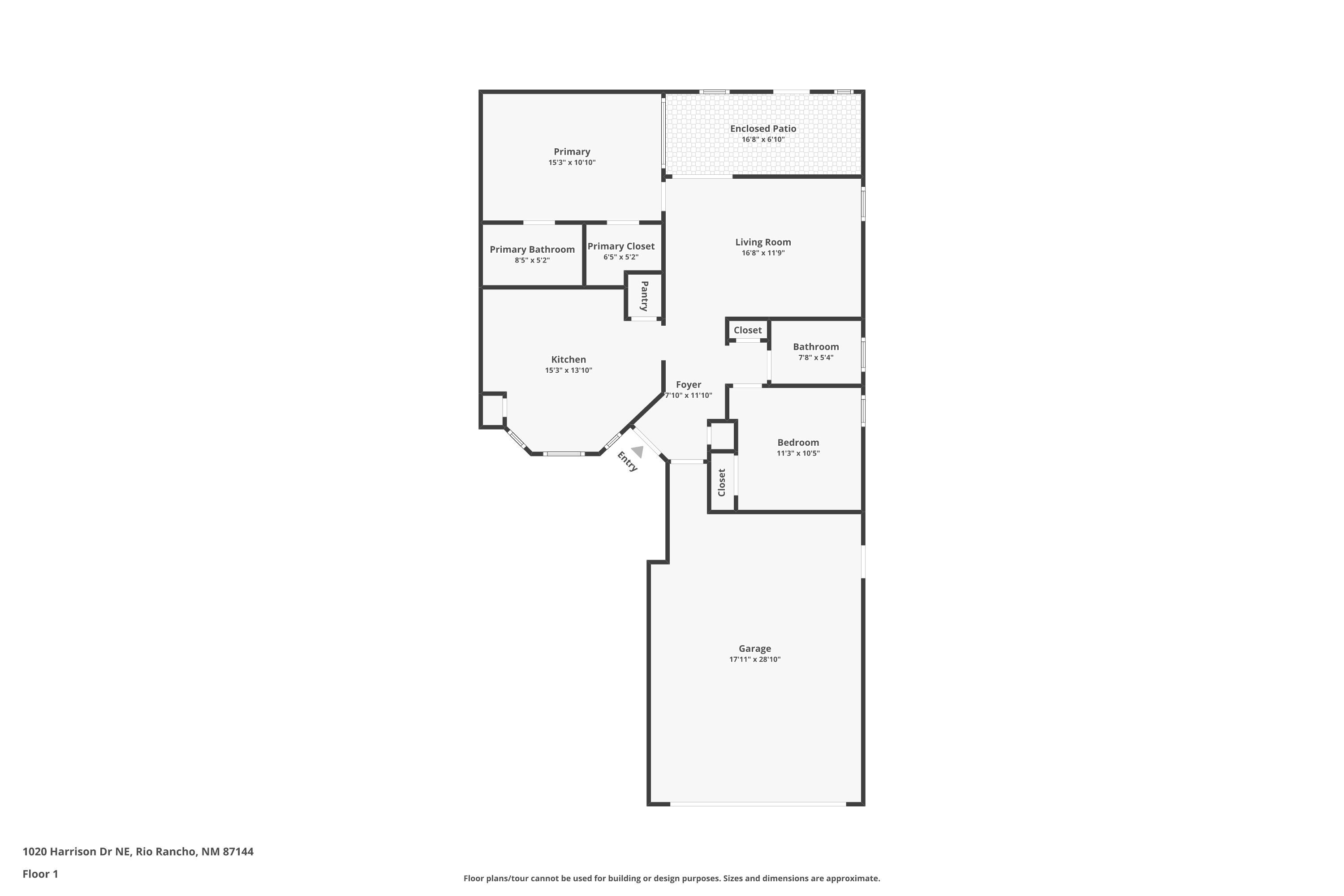
This well-maintained property offers a bright and functional layout with comfortable living spaces. The primary suite features a private en-suite bathroom and generous closet space, while the second bedroom and full bath provide flexibility for guests, a home office, or hobbies. A standout feature of this home is the sunroom -- filled with natural light and ideal for morning coffee, a reading nook, or indoor plants year-round. With a perfectly spaced yard, room for gardening, pets, and the peaceful surroundings that make Rio Rancho such a desirable place to live, this is the perfect place to call home!

Overview

Property Status
Sold
Lot Size
5,227 Sq.Ft.
MLS ID
1098771
Property Type
Residential
Year Built
1992

Features & Amenities

Total Area
903 Sq.Ft.
Neighborhood
Albuquerque / Rio Rancho
Architecture Styles
A-Frame
Stories
1
Garage Spaces
2.0
Water Source
Public
Utilites
Electricity Connected, Natural Gas Connected, Sewer Connected, Underground Utilities, Water Connected
Roof
Pitched
Heat Type
Natural Gas
Air Conditioning
Refrigerated
Laundry Room
Electric Dryer Hookup
Appliances
Dishwasher, Free-Standing Gas Range, Disposal, Microwave, Refrigerator
Other Interior Features
Ceiling Fan(s), Entrance Foyer, Family/Dining Room, High Speed Internet, Living/Dining Room, Main Level Primary, Pantry, Shower Only, Separate Shower, Walk-In Closet(s)
Sewer
Public Sewer
Security Features
Smoke Detector(s)
Green Feature
None
Other Exterior Features
Private Yard
Price Upon Request

Downloads

1020 Harrison Drive NE

Schedule a Tour

We would love to help you see this beautiful home! As a full-service brokerage, we can help you tour. Please submit an offer, and answer questions about the buying process.

Thank you

for your interest in 1020 Harrison Drive NE, Rio Rancho, NM 87144

1020 Harrison Drive NE
Navigate
Albuquerque / Rio Rancho

Explore Albuquerque / Rio Rancho

read more
1020 Harrison Drive NE
explore in 3d

I'm Interested In

1020 Harrison Drive NE

or Contact

Browse Our

Featured Properties

Explore our active properties below or contact us to schedule a private showing.

  • 6608 Cuervo Place NW Pending

    $1,699,999

    6608 Cuervo Place NW, Albuquerque, NM 87120

    • 4 Beds
    • 5 Baths
    • 4,427 Sq.Ft.
  • 1907 Inca Road NE For Sale

    $1,103,180

    1907 Inca Road NE, Rio Rancho, NM 87124

    • 4 Beds
    • 5 Baths
    • 3,317 Sq.Ft.
  • 2016 Contreras Road NE For Sale

    $1,050,000

    2016 Contreras Road NE, Rio Rancho, NM 87144

    • 4 Beds
    • 4 Baths
    • 3,260 Sq.Ft.
  • 2012 Contreras Road NE Pending

    $990,000

    2012 Contreras Road NE, Rio Rancho, NM 87144

    • 4 Beds
    • 4 Baths
    • 3,248 Sq.Ft.
  • 3105 Camino De La Sierra Lane NE For Sale

    $930,000

    3105 Camino De La Sierra Lane NE, Albuquerque, NM 87111

    • 5 Beds
    • 4 Baths
    • 3,746 Sq.Ft.
  • 1645 16th Avenue SE For Sale

    $699,999

    1645 16th Avenue SE, Rio Rancho, NM 87124

    • 4 Beds
    • 3 Baths
    • 2,611 Sq.Ft.
  • 2541 Seaforth Circle For Sale

    $544,999

    2541 Seaforth Circle, Rio Rancho, NM 87144

    • 5 Beds
    • 4 Baths
    • 3,040 Sq.Ft.
  • 705 Chihuahua Road NE Pending

    $515,000

    705 Chihuahua Road NE, Rio Rancho, NM 87144

    • 3 Beds
    • 3 Baths
    • 2,102 Sq.Ft.
  • 8752 Abierto Vista Circle NW For Sale

    $499,000

    8752 Abierto Vista Circle NW, Albuquerque, NM 87120

    • 3 Beds
    • 3 Baths
    • 2,526 Sq.Ft.
  • 4415 Hodgin Lane NW For Sale

    $495,000

    4415 Hodgin Lane NW, Albuquerque, NM 87120

    • 3 Beds
    • 2 Baths
    • 2,120 Sq.Ft.
  • 171 Suez Road NE For Sale

    $490,000

    171 Suez Road NE, Rio Rancho, NM 87124

    • 4 Beds
    • 3 Baths
    • 2,366 Sq.Ft.
  • 7424 Redbloom Road NW For Sale

    $479,000

    7424 Redbloom Road NW, Albuquerque, NM 87114

    • 4 Beds
    • 4 Baths
    • 2,189 Sq.Ft.
  • 4604 Hannett Avenue NE For Sale

    $450,000

    4604 Hannett Avenue NE, Albuquerque, NM 87110

    • 3 Beds
    • 3 Baths
    • 2,152 Sq.Ft.
  • 4412 Skyline Loop NE For Sale

    $419,900

    4412 Skyline Loop NE, Rio Rancho, NM 87144

    • 3 Beds
    • 3 Baths
    • 2,221 Sq.Ft.
  • 8217 Tina Drive NE Pending

    $419,000

    8217 Tina Drive NE, Albuquerque, NM 87109

    • 4 Beds
    • 2 Baths
    • 1,701 Sq.Ft.
  • 6928 Hawkwatch Road NW Pending

    $415,000

    6928 Hawkwatch Road NW, Albuquerque, NM 87114

    • 5 Beds
    • 4 Baths
    • 2,923 Sq.Ft.
  • 1962 Goldenflare Loop NE For Sale

    $410,000

    1962 Goldenflare Loop NE, Rio Rancho, NM 87144

    • 3 Beds
    • 2 Baths
    • 1,879 Sq.Ft.
  • 7512 Two Rock Road NW For Sale

    $410,000

    7512 Two Rock Road NW, Albuquerque, NM 87114

    • 3 Beds
    • 2 Baths
    • 1,528 Sq.Ft.
  • 219 Central Avenue NW 306/406 For Sale

    $399,000

    219 Central Avenue NW 306/406, Albuquerque, NM 87102

    • 2 Beds
    • 3 Baths
    • 1,520 Sq.Ft.
  • 4700 Homestead Trail NW For Sale

    $389,990

    4700 Homestead Trail NW, Albuquerque, NM 87120

    • 3 Beds
    • 3 Baths
    • 2,006 Sq.Ft.
  • 517 Palomas Drive SE For Sale

    $385,000

    517 Palomas Drive SE, Albuquerque, NM 87108

    • 6 Beds
    • 4 Baths
    • 3,040 Sq.Ft.
  • 521 Palomas Drive SE For Sale

    $385,000

    521 Palomas Drive SE, Albuquerque, NM 87108

    • 6 Beds
    • 4 Baths
  • 7315 Inwood Court NW For Sale

    $384,999

    7315 Inwood Court NW, Albuquerque, NM 87120

    • 4 Beds
    • 3 Baths
    • 1,959 Sq.Ft.
  • 9225 Mescalero Road NE For Sale

    $384,999

    9225 Mescalero Road NE, Albuquerque, NM 87111

    • 3 Beds
    • 2 Baths
    • 1,744 Sq.Ft.
  • 13619 MOUNTAIN WEST Court SE For Sale

    $375,000

    13619 MOUNTAIN WEST Court SE, Albuquerque, NM 87123

    • 3 Beds
    • 3 Baths
    • 2,000 Sq.Ft.
  • 4712 Eyota Drive NW Pending

    $365,000

    4712 Eyota Drive NW, Albuquerque, NM 87120

    • 3 Beds
    • 2 Baths
    • 1,587 Sq.Ft.
  • 2911 Richardson Way SW For Sale

    $349,000

    2911 Richardson Way SW, Albuquerque, NM 87121

    • 3 Beds
    • 3 Baths
    • 1,664 Sq.Ft.
  • 8709 Sawgrass Place NW Coming Soon

    $344,900

    8709 Sawgrass Place NW, Albuquerque, NM 87121

    • 3 Beds
    • 3 Baths
    • 1,601 Sq.Ft.
  • 4928 ROCKCRESS Drive NW Pending

    $340,000

    4928 ROCKCRESS Drive NW, Albuquerque, NM 87120

    • 3 Beds
    • 3 Baths
    • 1,720 Sq.Ft.
  • 537 Soothing Meadows Drive NE For Sale

    $340,000

    537 Soothing Meadows Drive NE, Rio Rancho, NM 87144

    • 3 Beds
    • 2 Baths
    • 1,592 Sq.Ft.
  • 6632 San Luis Obispo Avenue NE Pending

    $339,000

    6632 San Luis Obispo Avenue NE, Albuquerque, NM 87109

    • 3 Beds
    • 2 Baths
    • 1,600 Sq.Ft.
  • 3317 Marino Drive SE Pending

    $320,000

    3317 Marino Drive SE, Rio Rancho, NM 87124

    • 3 Beds
    • 2 Baths
    • 1,336 Sq.Ft.
  • 1616 Corte Del Sol For Sale

    $315,000

    1616 Corte Del Sol, Albuquerque, NM 87105

    • 3 Beds
    • 2 Baths
    • 1,236 Sq.Ft.
  • 12712 Rover Avenue NE Pending

    $310,000

    12712 Rover Avenue NE, Albuquerque, NM 87112

    • 2 Beds
    • 2 Baths
    • 1,300 Sq.Ft.
  • 260 Tarpon Avenue SE Pending

    $299,999

    260 Tarpon Avenue SE, Rio Rancho, NM 87124

    • 3 Beds
    • 2 Baths
    • 1,342 Sq.Ft.
  • 1649 Lark Spur Drive NE For Sale

    $290,000

    1649 Lark Spur Drive NE, Rio Rancho, NM 87144

    • 3 Beds
    • 3 Baths
    • 1,249 Sq.Ft.
  • 0 Vista Vieja Avenue NW 0 For Sale

    $268,000

    0 Vista Vieja Avenue NW 0, Albuquerque, NM 87120

  • 12000 STILWELL Place NE C For Sale

    $179,000

    12000 STILWELL Place NE C, Albuquerque, NM 87112

    • 2 Beds
    • 1 Bath
    • 850 Sq.Ft.
  • 2228 John Street SE For Sale

    $150,000

    2228 John Street SE, Albuquerque, NM 87102

    • 5 Beds
    • 2 Baths
    • 1,100 Sq.Ft.
  • 352 Buffalo Circle SE For Sale

    $148,500

    352 Buffalo Circle SE, Albuquerque, NM 87123

    • 3 Beds
    • 2 Baths
    • 1,397 Sq.Ft.
  • 2017 Santa Ana Road NE For Sale

    $99,000

    2017 Santa Ana Road NE, Rio Rancho, NM 87144

  • Lot 12 Davis/30th Avenue NE For Sale

    $99,000

    Lot 12 Davis/30th Avenue NE, Rio Rancho, NM 87144

  • 4301 Blake Road SW TRLR 40 For Sale

    $50,000

    4301 Blake Road SW TRLR 40, Albuquerque, NM 87121

    • 2 Beds
    • 2 Baths
    • 900 Sq.Ft.
  • Tabira Road NW For Sale

    $32,900

    Tabira Road NW, Albuquerque, NM 87120

  • 0 Resolana Place For Sale

    $19,950

    0 Resolana Place, Albuquerque, NM 87120

  • 2313 Melon Ridge Loop NE For Lease

    $3,200/mo

    2313 Melon Ridge Loop NE, Rio Rancho, NM 87144

    • 3 Beds
    • 2 Baths
    • 1,502 Sq.Ft.
  • 100 Gold Avenue SW APT 303 For Lease

    $2,000/mo

    100 Gold Avenue SW APT 303, Albuquerque, NM 87102

    • 1 Bed
    • 1 Bath
    • 1,112 Sq.Ft.
  • 4020 Vassar Drive NE For Lease

    $20/mo

    4020 Vassar Drive NE, Albuquerque, NM 87107

    • 12,031 Sq.Ft.
View All Properties

Follow Us On Instagram