Search

Leave a Message

Thank you for your message. We will be in touch with you shortly.

Explore Our Properties

Property Description

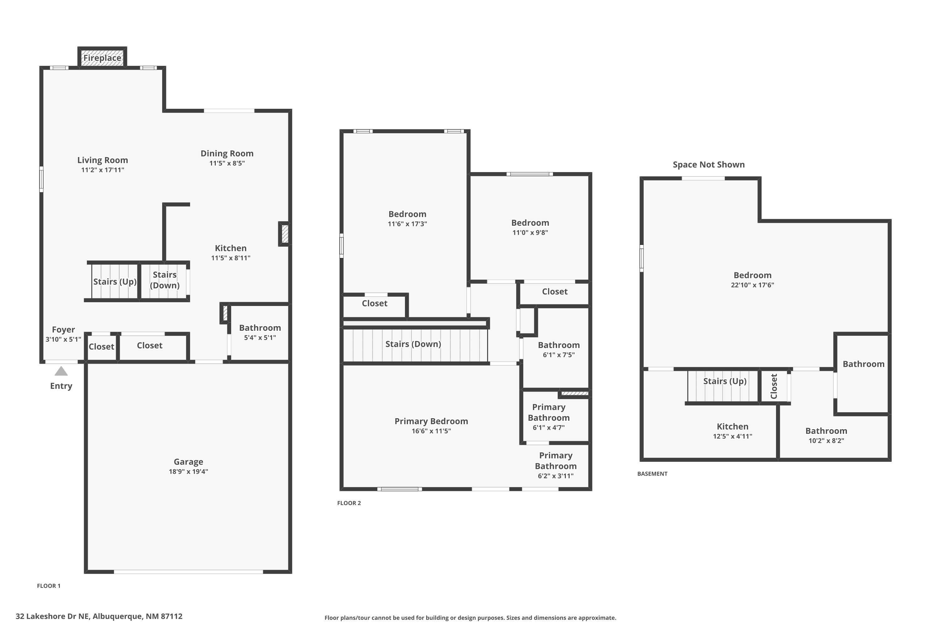
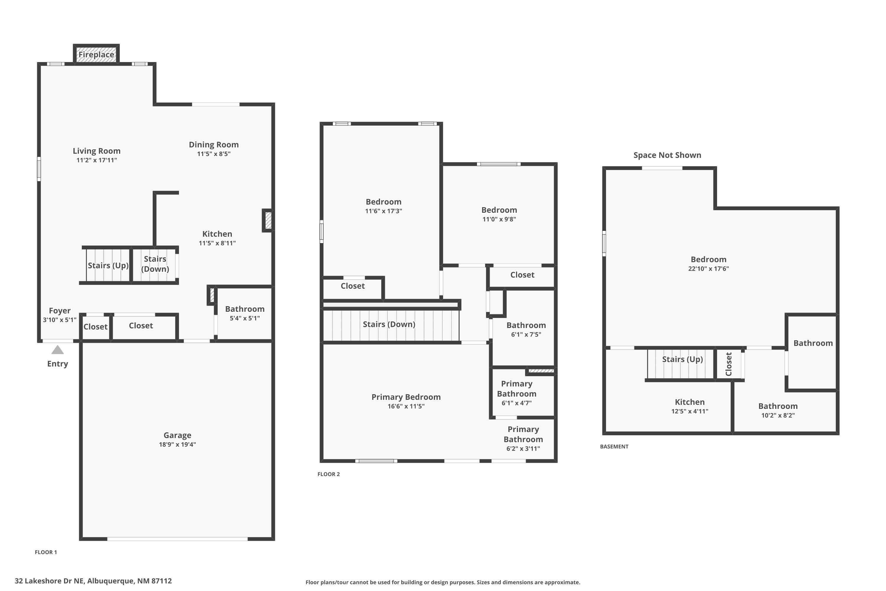
Beautifully updated NE Heights townhome with 4 bedrooms and 3.5 baths! Featuring new kitchen cabinets, granite counters, appliances, and all new flooring throughout. Living room offers a cozy wood-burning fireplace, while upstairs holds 3 spacious bedrooms. All bathrooms have been updated with new fixtures and tile. Finished basement has been converted into a large 4th bedroom with its own 3/4 bath--perfect as a 2nd master, living area, or hobby space. Basement also includes a sink/kitchenette area and has been rented out for added income in the past. HOA covers water, sewer, trash, front landscaping, common grounds, exterior maintenance (including brand-new roof), plus access to clubhouse, pool, and tennis courts. Furnishings are negotiable to stay with property!

Overview

Property Status
Sold
Lot Size
1,742.4 Sq.Ft.
MLS ID
1091811
Property Type
Residential
Year Built
1973

Features & Amenities

Total Area
1,983 Sq.Ft.
Neighborhood
Albuquerque / Rio Rancho
Stories
2
Garage Spaces
2.0
Water Source
Public
Utilites
Electricity Connected, Natural Gas Connected, Sewer Connected, Water Connected
Pool
Community
Roof
Mixed
Lot Features
Corner Lot
Parking
Attached, Garage
Heat Type
Central, Forced Air
Air Conditioning
Refrigerated
Laundry Room
Electric Dryer Hookup
Fireplace
Wood Burning
Appliances
Dryer, Dishwasher, Free-Standing Electric Range, Disposal, Microwave, Refrigerator, Washer
Other Interior Features
Ceiling Fan(s)
Sewer
Public Sewer
Disability Features
None
Security Features
Smoke Detector(s)
Green Feature
None
Elementary School
Onate (y)
Middle School
Jackson
High School
Manzano
Price Upon Request

Downloads

32 LAKESHORE Drive NE

Schedule a Tour

We would love to help you see this beautiful home! As a full-service brokerage, we can help you tour. Please submit an offer, and answer questions about the buying process.

Thank you

for your interest in 32 LAKESHORE Drive NE, Albuquerque, NM 87112

32 LAKESHORE Drive NE
Navigate
Albuquerque / Rio Rancho

Explore Albuquerque / Rio Rancho

read more
32 LAKESHORE Drive NE
explore in 3d

I'm Interested In

32 LAKESHORE Drive NE

or
  • CallKristina Salcido

    License #20817

    (505) 594-2689
  • Browse Our

    Featured Properties

    Explore our active properties below or contact us to schedule a private showing.

    • 6608 Cuervo Place NW For Sale

      $1,699,999

      6608 Cuervo Place NW, Albuquerque, NM 87120

      • 4 Beds
      • 5 Baths
      • 4,427 Sq.Ft.
    • 1907 Inca Road NE For Sale

      $1,103,180

      1907 Inca Road NE, Rio Rancho, NM 87124

      • 4 Beds
      • 5 Baths
      • 3,317 Sq.Ft.
    • 2016 Contreras Road NE For Sale

      $1,050,000

      2016 Contreras Road NE, Rio Rancho, NM 87144

      • 4 Beds
      • 4 Baths
      • 3,260 Sq.Ft.
    • 2012 Contreras Road NE Pending

      $990,000

      2012 Contreras Road NE, Rio Rancho, NM 87144

      • 4 Beds
      • 4 Baths
      • 3,248 Sq.Ft.
    • 1645 16th Avenue SE For Sale

      $739,000

      1645 16th Avenue SE, Rio Rancho, NM 87124

      • 4 Beds
      • 3 Baths
      • 2,611 Sq.Ft.
    • 6515 Alpine Trail Street NE Pending

      $699,000

      6515 Alpine Trail Street NE, Albuquerque, NM 87111

      • 3 Beds
      • 2 Baths
      • 2,289 Sq.Ft.
    • 3317 Palmyra Court NE Pending

      $630,000

      3317 Palmyra Court NE, Rio Rancho, NM 87144

      • 4 Beds
      • 3 Baths
      • 2,177 Sq.Ft.
    • 8752 Abierto Vista Circle NW For Sale

      $575,000

      8752 Abierto Vista Circle NW, Albuquerque, NM 87120

      • 3 Beds
      • 3 Baths
      • 2,526 Sq.Ft.
    • 705 Chihuahua Road NE For Sale

      $515,000

      705 Chihuahua Road NE, Rio Rancho, NM 87144

      • 3 Beds
      • 3 Baths
      • 2,102 Sq.Ft.
    • 171 Suez Road NE For Sale

      $514,000

      171 Suez Road NE, Rio Rancho, NM 87124

      • 4 Beds
      • 3 Baths
      • 2,366 Sq.Ft.
    • 4415 Hodgin Lane NW For Sale

      $499,000

      4415 Hodgin Lane NW, Albuquerque, NM 87120

      • 3 Beds
      • 2 Baths
      • 2,120 Sq.Ft.
    • 7424 Redbloom Road NW For Sale

      $489,000

      7424 Redbloom Road NW, Albuquerque, NM 87114

      • 4 Beds
      • 4 Baths
      • 2,189 Sq.Ft.
    • 4604 Hannett Avenue NE For Sale

      $450,000

      4604 Hannett Avenue NE, Albuquerque, NM 87110

      • 3 Beds
      • 3 Baths
      • 2,152 Sq.Ft.
    • 523 High Street SE For Sale

      $420,000

      523 High Street SE, Albuquerque, NM 87102

      • 2 Beds
      • 2 Baths
      • 1,993 Sq.Ft.
    • 6928 Hawkwatch Road NW For Sale

      $420,000

      6928 Hawkwatch Road NW, Albuquerque, NM 87114

      • 5 Beds
      • 4 Baths
      • 2,923 Sq.Ft.
    • 4412 Skyline Loop NE For Sale

      $419,900

      4412 Skyline Loop NE, Rio Rancho, NM 87144

      • 3 Beds
      • 3 Baths
      • 2,221 Sq.Ft.
    • 6024 Nauman Drive SE Pending

      $419,000

      6024 Nauman Drive SE, Albuquerque, NM 87106

      • 3 Beds
      • 2 Baths
      • 1,870 Sq.Ft.
    • 7512 Two Rock Road NW For Sale

      $410,000

      7512 Two Rock Road NW, Albuquerque, NM 87114

      • 3 Beds
      • 2 Baths
      • 1,528 Sq.Ft.
    • 219 Central Avenue NW 306/406 For Sale

      $405,000

      219 Central Avenue NW 306/406, Albuquerque, NM 87102

      • 2 Beds
      • 3 Baths
      • 1,520 Sq.Ft.
    • 7315 Inwood Court NW For Sale

      $399,000

      7315 Inwood Court NW, Albuquerque, NM 87120

      • 4 Beds
      • 3 Baths
      • 1,840 Sq.Ft.
    • 9225 Mescalero Road NE For Sale

      $399,000

      9225 Mescalero Road NE, Albuquerque, NM 87111

      • 3 Beds
      • 2 Baths
      • 1,744 Sq.Ft.
    • 7701 La Brea Street NE Pending

      $390,000

      7701 La Brea Street NE, Albuquerque, NM 87113

      • 4 Beds
      • 3 Baths
      • 1,921 Sq.Ft.
    • 4700 Homestead Trail NW For Sale

      $389,990

      4700 Homestead Trail NW, Albuquerque, NM 87120

      • 3 Beds
      • 3 Baths
      • 2,006 Sq.Ft.
    • 517 Palomas Drive SE For Sale

      $385,000

      517 Palomas Drive SE, Albuquerque, NM 87108

      • 6 Beds
      • 4 Baths
      • 3,040 Sq.Ft.
    • 521 Palomas Drive SE For Sale

      $385,000

      521 Palomas Drive SE, Albuquerque, NM 87108

      • 6 Beds
      • 4 Baths
    • 13619 MOUNTAIN WEST Court SE For Sale

      $375,000

      13619 MOUNTAIN WEST Court SE, Albuquerque, NM 87123

      • 3 Beds
      • 3 Baths
      • 2,000 Sq.Ft.
    • 9616 Puccini Trail NW Pending

      $365,000

      9616 Puccini Trail NW, Albuquerque, NM 87114

      • 3 Beds
      • 3 Baths
      • 1,933 Sq.Ft.
    • 537 Soothing Meadows Drive NE For Sale

      $345,000

      537 Soothing Meadows Drive NE, Rio Rancho, NM 87144

      • 3 Beds
      • 2 Baths
      • 1,592 Sq.Ft.
    • 4928 ROCKCRESS Drive NW Pending

      $340,000

      4928 ROCKCRESS Drive NW, Albuquerque, NM 87120

      • 3 Beds
      • 3 Baths
      • 1,720 Sq.Ft.
    • 956 Galeras Street NW Pending

      $340,000

      956 Galeras Street NW, Albuquerque, NM 87120

      • 3 Beds
      • 2 Baths
      • 1,403 Sq.Ft.
    • 6983 Clark Hills Drive NE Pending

      $330,000

      6983 Clark Hills Drive NE, Rio Rancho, NM 87144

      • 3 Beds
      • 2 Baths
      • 1,564 Sq.Ft.
    • 3317 Marino Drive SE For Sale

      $320,000

      3317 Marino Drive SE, Rio Rancho, NM 87124

      • 3 Beds
      • 2 Baths
      • 1,336 Sq.Ft.
    • 8027 Monte Carlo Drive For Sale

      $319,000

      8027 Monte Carlo Drive, Albuquerque, NM 87120

    • 12712 Rover Avenue NE For Sale

      $310,000

      12712 Rover Avenue NE, Albuquerque, NM 87112

      • 2 Beds
      • 2 Baths
      • 1,300 Sq.Ft.
    • 260 Tarpon Avenue SE Pending

      $299,999

      260 Tarpon Avenue SE, Rio Rancho, NM 87124

      • 3 Beds
      • 2 Baths
      • 1,342 Sq.Ft.
    • 1020 Harrison Drive NE Pending

      $273,000

      1020 Harrison Drive NE, Rio Rancho, NM 87144

      • 2 Beds
      • 2 Baths
      • 903 Sq.Ft.
    • 0 Vista Vieja Avenue NW 0 For Sale

      $268,000

      0 Vista Vieja Avenue NW 0, Albuquerque, NM 87120

    • 12000 STILWELL Place NE C For Sale

      $179,000

      12000 STILWELL Place NE C, Albuquerque, NM 87112

      • 2 Beds
      • 1 Bath
      • 850 Sq.Ft.
    • 352 Buffalo Circle SE For Sale

      $150,500

      352 Buffalo Circle SE, Albuquerque, NM 87123

      • 3 Beds
      • 2 Baths
      • 1,397 Sq.Ft.
    • 2228 John Street SE For Sale

      $150,000

      2228 John Street SE, Albuquerque, NM 87102

      • 5 Beds
      • 2 Baths
      • 1,100 Sq.Ft.
    • 4301 Blake Road SW TRLR 40 For Sale

      $55,000

      4301 Blake Road SW TRLR 40, Albuquerque, NM 87121

      • 2 Beds
      • 2 Baths
    • Tabira Road NW For Sale

      $34,900

      Tabira Road NW, Albuquerque, NM 87120

    • Tabira Road NW For Sale

      $34,900

      Tabira Road NW, Albuquerque, NM 87120

    • Calle Plata NW For Sale

      $29,000

      Calle Plata NW, Albuquerque, NM 87120

    • 0 Alfanje Street NW Pending

      $23,000

      0 Alfanje Street NW, Albuquerque, NM 87120

    • 0 Resolana Place For Sale

      $19,950

      0 Resolana Place, Albuquerque, NM 87120

    • Copperton Street SE Pending

      $15,000

      Copperton Street SE, Rio Rancho, NM 87144

    • 7th Street NE For Sale

      $10,000

      7th Street NE, Rio Rancho, NM 87124

    • 1221 Paisano Street NE For Lease

      $2,600/mo

      1221 Paisano Street NE, Albuquerque, NM 87112

      • 4 Beds
      • 2 Baths
      • 2,027 Sq.Ft.
    • 100 Gold Avenue SW APT 303 For Lease

      $2,000/mo

      100 Gold Avenue SW APT 303, Albuquerque, NM 87102

      • 1 Bed
      • 1 Bath
      • 1,112 Sq.Ft.
    View All Properties

    Follow Us On Instagram